When the clients first approached us about designing this home in Folsom we visited the site. We were immediately struck by the challenges of the dramatic view lot and its steep slope. The homeowners’ vision included a horseshoe shape footprint with a swimming pool enclosed within the resulting space. This very creative idea presented some challenges with accomplishing level space and managing the depth of the building footprint. So, as the design developed we had to pay close attention to the grades, potential views, and driveway slope.

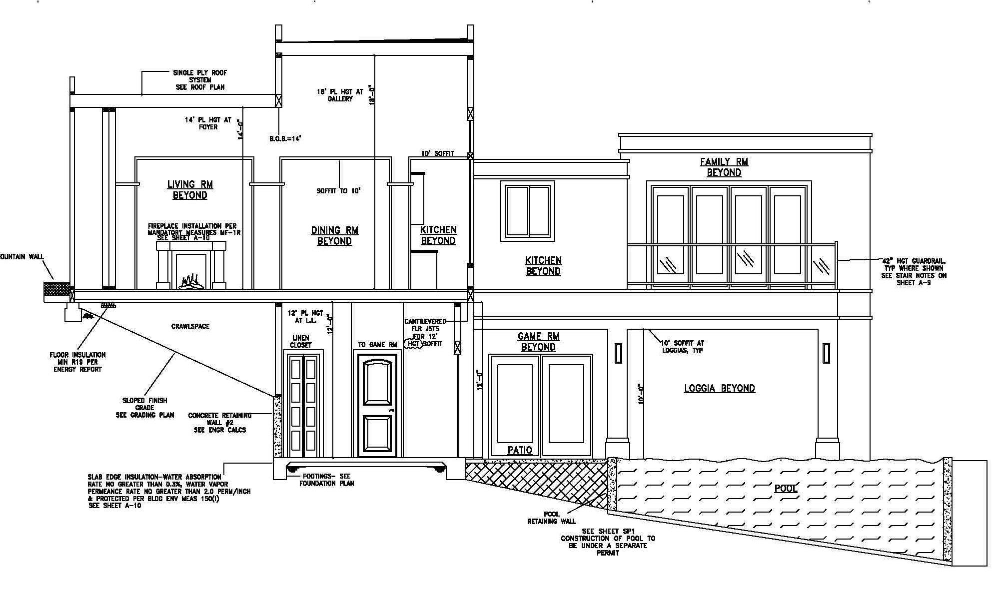
Our design of this home incorporates multiple ceiling and soffit heights, and many parapet levels. Such a contemporary design needs a variety of surfaces and vertical lines to give visual interest to the exterior of the home.

With such a steep lot another challenge was to keep the curb appeal and create an inviting entrance. Soft lines, a low profile from the street, and several steps down the hill all give the home the feeling it belongs here. In the end, the front entry element says ‘welcome’ and the dramatic views are captured throughout the home, even before entering at the front door.
 

 
   

Building heights and grades step down naturally as the property slopes, ending with staggered rock retaining walls which are integrated with the landscape.

 

The front of the home has a low profile, fitting in at the street with an inviting main entrance.

At every turn the potential for capturing a view has been considered.

 


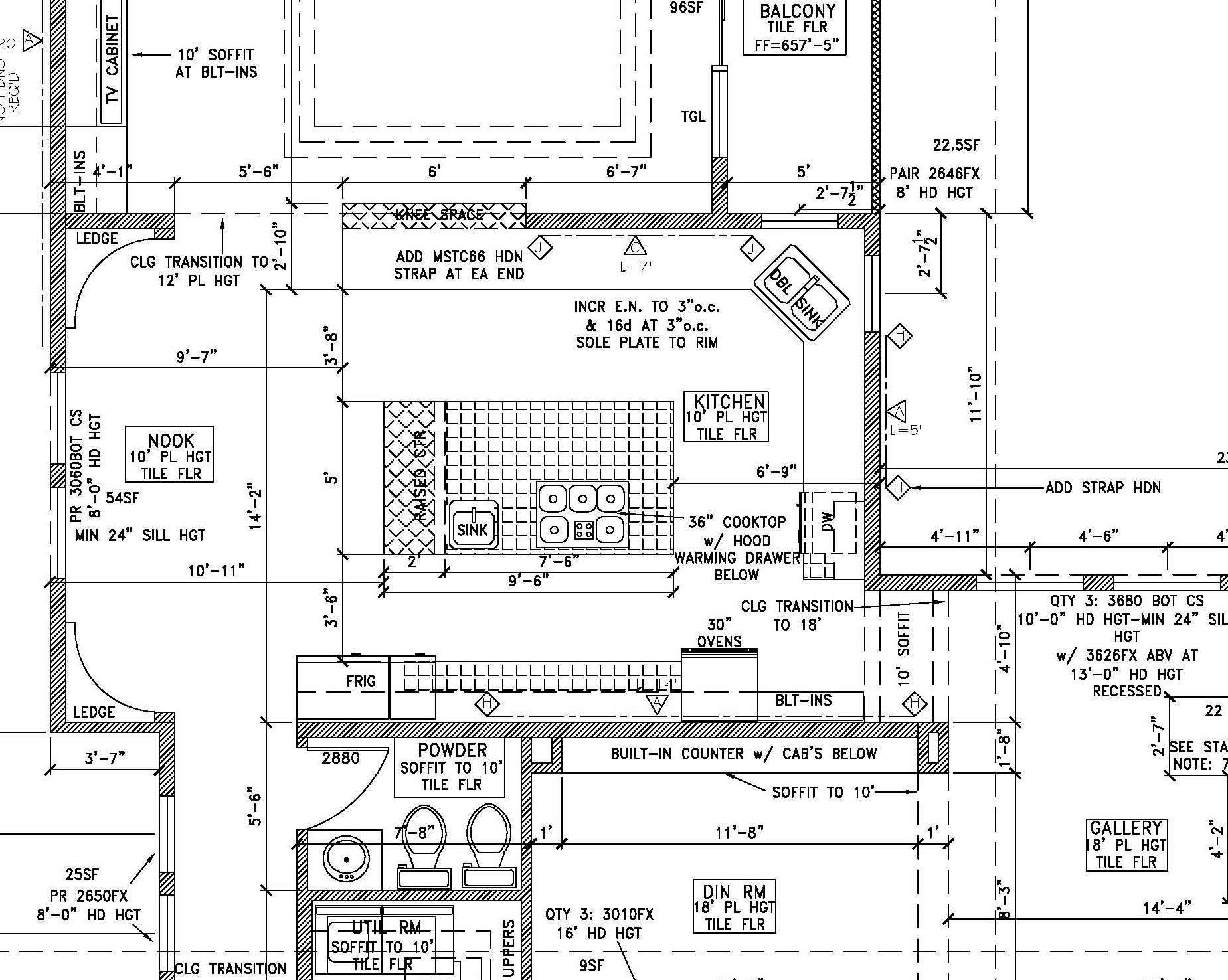
The kitchen is spacious, comfortable, and functional.

 

 

High ceilings are complemented with niches, soffits, and tall windows.

 

The swimming pool is embedded within the outdoor spaces and captures dramatic views.

 
 

 
 

Avignon Design • Sacramento, CA
916-889-2700
email brandon@avignondesign.com